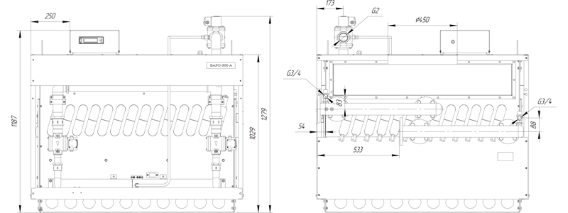
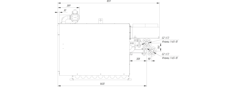
Перед инженерами завода котельного оборудования АО «Ирбис» была поставлена задача разработать особый котел «Барс» с модуляцией мощности и сниженным гидравлическим сопротивлением. Уменьшение гидравлического сопротивления позволяет использовать в системе с котлом насосы меньшей мощности, что особенно актуально для объектов с ограниченными энергетическими ресурсами.

Весной 2025 года поставленная задача была успешно решена техническими специалистами предприятия путем разделения теплообменника на две параллельные части. Такая конструкция позволила существенно снизить внутреннее гидравлическое сопротивление и повысить гибкость работы котла при различных режимах нагрузки.


На данный момент разработан образец мощностью 500 кВт, однако технология масштабируема, поэтому возможно исполнение различных мощностных модификаций в зависимости от потребностей заказчика. Более подробную информацию можно получить по номеру 8-800-511-10-44. Наши специалисты проконсультируют вас по всем интересующим вопросам.